As centrais universais servem em quase todos os tipos de motores de portões eletrônicos sendo basculantes ou deslizantes e outros sentidos de abertura, neste poste vamos abordar a central universal da linha Garen.
Programação do controle remoto.
Pressione e solte o botão TX da central.
O LED irá piscar e permanecer aceso.
Pressione e solte o botão do controle remoto desejado.
O LED irá piscar por alguns segundos. Enquanto o LED está piscando, pressione novamente o botão TX da central para confirmar o cadastro.
O controle remoto será descartado caso este procedimento não seja confirmado, permanecendo o LED aceso. Após a programação dos botões dos controles remotos, aguarde 8 segundos ou pressione o botão TX da central enquanto o LED estiver aceso.
Apagar controles da memória.
Para apagar toda a memória, pressione e solte o botão TX da central.
O LED irá piscar e permanecer aceso.
Mantenha pressionado o botão TX da central até que o LED comece a piscar rapidamente.
Quando o LED ficar aceso indica que a memória está vazia,
pressione o botão TX ou aguarde o LED apagar.
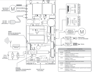
Fotocélula
Para verificar o sentido de fechamento, acione a foto célula, onde somente durante o fechamento o portão irá reverter o sentido. Para inverter o sentido inverta o conector do fim de curso e altere as posições entre os fios de abertura e fechamento do motor.
Programação do Tempo de Abertura / Fechamento.
Para uma maior segurança no funcionamento do automatizador é necessário fazer a programação do curso do portão.
CUIDADO QUE O PORTÃO IRÁ MOVIMENTAR DE FORMA AUTOMÁTICA.
Com o portão parado, mude o jumper da posição OFF para CURSO,
o LED deverá piscar, mostrando que reconheceu o comando e em seguida o portão irá começar a movimentar.
A primeira movimentação é no sentido de fechamento. Caso o portão já esteja fechado ou após a primeira movimentação, o portão irá fazer uma abertura e um fechamento completo e ao final o LED permanecerá aceso.
Retire o jumper da posição CURSO e coloque na posição OFF para finalizar a operação.
Caso seja necessário interromper o aprendizado de curso, é possível acionar o controle remoto, onde irá parar a movimentação do portão.
Retire o jumper da posição CURSO e faça todo o procedimento novamente.
Ajuste de fechamento automático.
Com o portão parado, retire o jumper da posição OFF e insira na posição PAUSA.
Em seguida, a cada pressionada do botão o tempo de pausa será acrescido em 2 segundos, partindo de 0.
No final da programação, retire o jumper da posição PAUSA e retorne para a posição OFF.
Para apagar o tempo de fechamento automático,
a qualquer momento onde o jumper esteja na posição PAUSA, pressione e mantenha pressionado o botão até o LED ascender por 5 segundos.
Retire o jumper da posição PAUSA e retorne para a posição OFF. pronto apagado o tempo de fechamento automático.
Modo condomínio.
Com o jumper habilitando no modo condomínio a central passar a não aceitar comando de controle remoto enquanto está no movimento de abertura do portão e durante o movimento de fechamento faz a reversão do motor se um comando de controle remoto acontecer.
A entrada de foto célula faz a função de laço, onde ao ser acionado (levando ao GND) a entrada da foto célula o portão ignora comando de fechamento por controle remoto e após a entrada da foto célula ser liberada executa o fechamento do portão.
Ajustar o Freio eletrônico da central.
Desligue a central da rede elétrica e espere alguns segundos.
Ligue a central na rede elétrica novamente enquanto mantem pressionado o botão TX da central.
Libere o botão quando o LED permanecer aceso.
O botão aumenta o nível , cada vez que aperta o botão TX o freio aumenta um nível
piscando o LED conforme o nível de freio. 1 piscada nível 1, 2 piscada nível 2, e assim em diante até o nível 10.
LED pisca com um intervalo maior indicando que retornou ao nível 0 com o freio desligado.
Para verificar a condição da função, retire a alimentação da central, espere alguns segundos e volte a ligar na rede elétrica. Verifique o LED durante a inicialização: número de piscadas é igual ao nível de freio .

































































