neste tutorial estaremos esclarecendo da melhor forma possível como instalar seu interfone residencial,HDL,AGL,Thevear,Lider,Amelco e outros
escolha do equipamento a ser utilizado.
Para a instalação é necessário o kit interfone, e qual equipamento ou qual marca devo utilizar? pois bem, é preciso analisar certos fatores para concluirmos a escolha do equipamento a ser utilizado,
Quais fatores são estes?...
o ambiente de sua rua é barulhento ou silencioso?
o interfone abrirá alguma porta?
o interfone ficará exposto ao tempo ou não?
a marca escolhida tem assistência técnica em sua cidade?
o equipamento a ser escolhido deverá atender a estas necessidades.
preparação da parte estrutural para o equipamento escolhido.
Agora devemos analisar a parte estrutural a ser instalado o equipamento, a posição e a altura correta para o painel externo, lembrando que esta posição não vale para todas as instruturas de imoveis.
devemos analisar outros fatores,
a tubulação para a fiação do interfone pois a fiação não deve ficar exposta ao tempo,salvo no caso de fios compatíveis para exposição ao tempo.
pode-se também utilizar canaletas,conduítes e similares.
veja um exemplo básico de tubulação para interfones residenciais com ou sem câmeras.
escolhendo a fiação a ser utilizada.
para escolhermos a fiação apropriada para o equipamento devemos observar alguns itens.
qual a distancia entre o painel externo e o monofone?
todo o fio será tubulado?sim ou não.
qual a marca e modelo do interfone?
de onde vai partir o acionador da fechadura?
o interfone tem câmera ou não?
o interfone vai ter extensão ou não?
utilize fios multipolares com cores para facilitar a identificação do fio.
vamos responder as perguntas;
distancia entre o painel externo e o monofone?
veja tabela.
o fio será tubulado?
se o fio não for tubulado utilize fios próprios para área externa.
qual a marca e modelo do interfone?
a quantidade de fiação muda entre as marcas e modelos de interfones.deve-se verificar no manual do modelo de interfone escolhido a quantidade de fios do painel até o monofone,e onde é ligado a energia do aparelho.
de onde vai partir o acionador da fechadura?
vai depender do modo de instalação escolhido(inviolável ou violável) ou pela marca e modelo de interfone utilizado.
o interfone tem câmera ou não?
se tiver deve-se utilizar cabos de rede ou cabos coaxiais para o sinal de vídeo.
o interfone vai ter extensão ou não?
verifique no manual do modelo do interfone a ligação da extensão. pois em vários modelos a extensão e ligada em paralelo ao monofone, e em outros modelos não, verifique isto antes de correr a fiação na tubulação.
fazendo a instalação e ligação do interfone.
primeiro vamos escolher a posição e altura do painel externo,observando a parte estrutural a ser instalado o painel pois cada lugar é uma arquitetura diferente.
então vamos obedecer uns princípios.
veja imagem de posição e altura padrão de fixação do painel externo.
Agora vamos escolher a posição e altura da parte interna,(base ou monofone).
veja imagem de posição e altura padrão de fixação da base ou monofone.
Para passar a fiação adequada ao equipamento primeiro deve-se saber qual a marca e modelo do interfone a ser instalado,verifique no manual do equipamento quantos pares de fio são utilizados para o correto funcionamento do interfone em sua ligação.
enfim, a fiação só é escolhida conforme equipamento adquirido.
devido a infinidades de interfones no mercado, e fabricantes que não mantem um padrão pré definido para instalação de varias marcas e modelos,não sabemos qual a quantidade exata de fiação a ser utilizada. pois, isto depende da escolha do modelo de interfone...
com posição e altura definidos e a fiação já passada agora vamos à fixação do equipamento,os kits de interfone tem duas opções de fixação embutir ou sobrepor,na maioria dos modelos os interfones são de sobrepor fixados por buchas e parafusos ou outros.
ligação do interfone.
sabemos que há muitas marcas e modelos de interfones e cada um com um tipo de ligação diferente, enfim não há um padrão, por isso devemos observar o manual do fabricante e seguir a ligação conforme o manual.
mas há um padrão básico nos projetos eletrônicos,(sua função).pois utilizam só um par de fio da base ao monofone.
veja imagem esquema de ligação de interfone modelo F8 e F8s HDL,Líder,AGL,amelco e outros.
em outras marcas e modelos os bornes de ligação são nomeados diferente por isto é importante verificar o manual do fabricante para que a ligação fique correta sem duvidas.
veja outros esquemas de fabricantes diferentes.
porque ligação de 2 ou 4 fios, na ligação de 2 fios o painel externo é o que aciona a fechadura.
Sendo o painel externo a acionar a fechadura o mesmo fica vulnerável a terceiros violarem o painel externo e acionarem a fechadura, abrindo o portão social pelo painel externo e deixando o seu imóvel vulnerável.
Há opções para seu interfone não ficar vulnerável.
utilizando a instalação de 4 fios ou ligação independente p/ fechadura.
Ou instalando grades de proteção com parafusos passantes(parafusando por dentro).
veja imagem.
dicas para a instalação;
use calcados isolantes,
mantenha a calma na hora das ligações,
não manuseie fios ligados a rede elétrica,
confira as fiações antes de ligar o aparelho à rede elétrica,
enfim, ter paciência ,seguir o manual,não é um bicho de 7 cabeças,
problemas possíveis.
interfone só comunica para um lado?
solução:
verifique a rede elétrica se esta correspondente ao aparelho,
verifique a fiação,estando OK
pode então ter problemas no interfone leve-o a assistência técnica.
interfone não para de tocar?
solução:
alguns modelos só funcionam com a tampa do painel parafusada,
verifique o botão de chamada se esta agarrado,
verifique a fiação.
interfone não fala mas abre a fechadura.
solução:
verifique a fiação nos bornes se estão invertidos
monofone pode estar com problemas,
pode também ter problemas no painel.
interfone não abre a fechadura ou de vez em quando abre.
solução:
verifique a fiação da fechadura,
verifique a saída de 12V do interfone,
verifique a bobina da fechadura,
verifique a mecânica da fechadura(ela deve ficar sensível quando energizada),
interfone com barulho ou interferência no áudio.
solução:
verifique se a fiação passa junto à rede elétrica,
pode ter problemas com a fiação,
interfone não funciona não liga.
solução:
verifique a rede elétrica se esta correspondente ao aparelho,
verifique a fiação.
pode ter problemas no aparelho.
escolha do equipamento a ser utilizado.
Para a instalação é necessário o kit interfone, e qual equipamento ou qual marca devo utilizar? pois bem, é preciso analisar certos fatores para concluirmos a escolha do equipamento a ser utilizado,
Quais fatores são estes?...
o ambiente de sua rua é barulhento ou silencioso?
o interfone abrirá alguma porta?
o interfone ficará exposto ao tempo ou não?
a marca escolhida tem assistência técnica em sua cidade?
o equipamento a ser escolhido deverá atender a estas necessidades.
preparação da parte estrutural para o equipamento escolhido.
Agora devemos analisar a parte estrutural a ser instalado o equipamento, a posição e a altura correta para o painel externo, lembrando que esta posição não vale para todas as instruturas de imoveis.
devemos analisar outros fatores,
a tubulação para a fiação do interfone pois a fiação não deve ficar exposta ao tempo,salvo no caso de fios compatíveis para exposição ao tempo.
pode-se também utilizar canaletas,conduítes e similares.
veja um exemplo básico de tubulação para interfones residenciais com ou sem câmeras.
escolhendo a fiação a ser utilizada.
para escolhermos a fiação apropriada para o equipamento devemos observar alguns itens.
qual a distancia entre o painel externo e o monofone?
todo o fio será tubulado?sim ou não.
qual a marca e modelo do interfone?
de onde vai partir o acionador da fechadura?
o interfone tem câmera ou não?
o interfone vai ter extensão ou não?
utilize fios multipolares com cores para facilitar a identificação do fio.
vamos responder as perguntas;
distancia entre o painel externo e o monofone?
veja tabela.
o fio será tubulado?
se o fio não for tubulado utilize fios próprios para área externa.
qual a marca e modelo do interfone?
a quantidade de fiação muda entre as marcas e modelos de interfones.deve-se verificar no manual do modelo de interfone escolhido a quantidade de fios do painel até o monofone,e onde é ligado a energia do aparelho.
de onde vai partir o acionador da fechadura?
vai depender do modo de instalação escolhido(inviolável ou violável) ou pela marca e modelo de interfone utilizado.
o interfone tem câmera ou não?
se tiver deve-se utilizar cabos de rede ou cabos coaxiais para o sinal de vídeo.
o interfone vai ter extensão ou não?
verifique no manual do modelo do interfone a ligação da extensão. pois em vários modelos a extensão e ligada em paralelo ao monofone, e em outros modelos não, verifique isto antes de correr a fiação na tubulação.
fazendo a instalação e ligação do interfone.
primeiro vamos escolher a posição e altura do painel externo,observando a parte estrutural a ser instalado o painel pois cada lugar é uma arquitetura diferente.
então vamos obedecer uns princípios.
veja imagem de posição e altura padrão de fixação do painel externo.
Agora vamos escolher a posição e altura da parte interna,(base ou monofone).
veja imagem de posição e altura padrão de fixação da base ou monofone.
Para passar a fiação adequada ao equipamento primeiro deve-se saber qual a marca e modelo do interfone a ser instalado,verifique no manual do equipamento quantos pares de fio são utilizados para o correto funcionamento do interfone em sua ligação.
enfim, a fiação só é escolhida conforme equipamento adquirido.
devido a infinidades de interfones no mercado, e fabricantes que não mantem um padrão pré definido para instalação de varias marcas e modelos,não sabemos qual a quantidade exata de fiação a ser utilizada. pois, isto depende da escolha do modelo de interfone...
com posição e altura definidos e a fiação já passada agora vamos à fixação do equipamento,os kits de interfone tem duas opções de fixação embutir ou sobrepor,na maioria dos modelos os interfones são de sobrepor fixados por buchas e parafusos ou outros.
ligação do interfone.
sabemos que há muitas marcas e modelos de interfones e cada um com um tipo de ligação diferente, enfim não há um padrão, por isso devemos observar o manual do fabricante e seguir a ligação conforme o manual.
mas há um padrão básico nos projetos eletrônicos,(sua função).pois utilizam só um par de fio da base ao monofone.
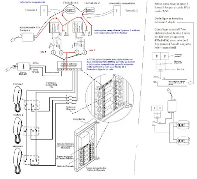
veja imagem esquema de ligação de interfone modelo F8 e F8s HDL,Líder,AGL,amelco e outros.
em outras marcas e modelos os bornes de ligação são nomeados diferente por isto é importante verificar o manual do fabricante para que a ligação fique correta sem duvidas.
veja outros esquemas de fabricantes diferentes.
interfone AGL
interfone thevear
esquema HDL
Sendo o painel externo a acionar a fechadura o mesmo fica vulnerável a terceiros violarem o painel externo e acionarem a fechadura, abrindo o portão social pelo painel externo e deixando o seu imóvel vulnerável.
Há opções para seu interfone não ficar vulnerável.
utilizando a instalação de 4 fios ou ligação independente p/ fechadura.
Ou instalando grades de proteção com parafusos passantes(parafusando por dentro).
veja imagem.
dicas para a instalação;
use calcados isolantes,
mantenha a calma na hora das ligações,
não manuseie fios ligados a rede elétrica,
confira as fiações antes de ligar o aparelho à rede elétrica,
enfim, ter paciência ,seguir o manual,não é um bicho de 7 cabeças,
problemas possíveis.
interfone só comunica para um lado?
solução:
verifique a rede elétrica se esta correspondente ao aparelho,
verifique a fiação,estando OK
pode então ter problemas no interfone leve-o a assistência técnica.
interfone não para de tocar?
solução:
alguns modelos só funcionam com a tampa do painel parafusada,
verifique o botão de chamada se esta agarrado,
verifique a fiação.
interfone não fala mas abre a fechadura.
solução:
verifique a fiação nos bornes se estão invertidos
monofone pode estar com problemas,
pode também ter problemas no painel.
interfone não abre a fechadura ou de vez em quando abre.
solução:
verifique a fiação da fechadura,
verifique a saída de 12V do interfone,
verifique a bobina da fechadura,
verifique a mecânica da fechadura(ela deve ficar sensível quando energizada),
interfone com barulho ou interferência no áudio.
solução:
verifique se a fiação passa junto à rede elétrica,
pode ter problemas com a fiação,
interfone não funciona não liga.
solução:
verifique a rede elétrica se esta correspondente ao aparelho,
verifique a fiação.
pode ter problemas no aparelho.






























